PRODUCTS
- 首頁
- 產品介紹
| FW | 40 mm | 內徑 of ball complement |
| D | 62 mm | 外徑 |
| L | 80 mm | 長度 |
| Cmin | 8,800 N | load capacity dyn. 1 |
| C0 min | 7,200 N | load capacity stat. 1 |
| Cmax | 10,200 N | load capacity dyn. 1 |
| C0 max | 9,600 N | load capacity stat. 1 |
| ≈m | 0.34 kg | 重量 |
| L2 | 60.3 mm | |
H13 | Tolerance | |
| BL2 | 2.15 mm | |
| DN | 59.4 mm | |
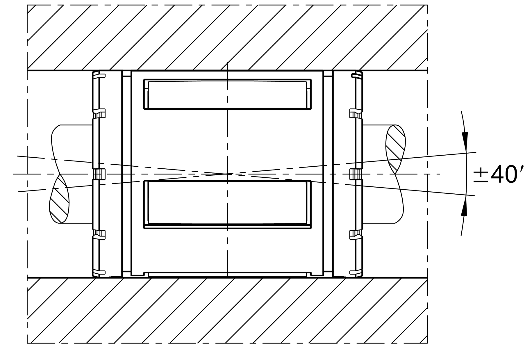
| A10 | 1.5 mm | Angle of sector opening |
| N1 | 3.5 mm | 2 |
| N4 | 3 mm | |
8 | 球列數 |
| Size code | 40 |