PRODUCTS
- 首頁
- 產品介紹
| FW | 30 mm | 內徑 of ball complement |
| D | 47 mm | 外徑 |
| L | 68 mm | 長度 |
| Cmin | 4,650 N | load capacity dyn. 1 |
| C0 min | 3,970 N | load capacity stat. 1 |
| Cmax | 5,900 N | load capacity dyn. 1 |
| C0 max | 6,000 N | load capacity stat. 1 |
| ≈m | 0.18 kg | 重量 |
| L2 | 51.7 mm | |
H13 | Tolerance | |
| BL2 | 1.85 mm | |
| DN | 44.7 mm | |
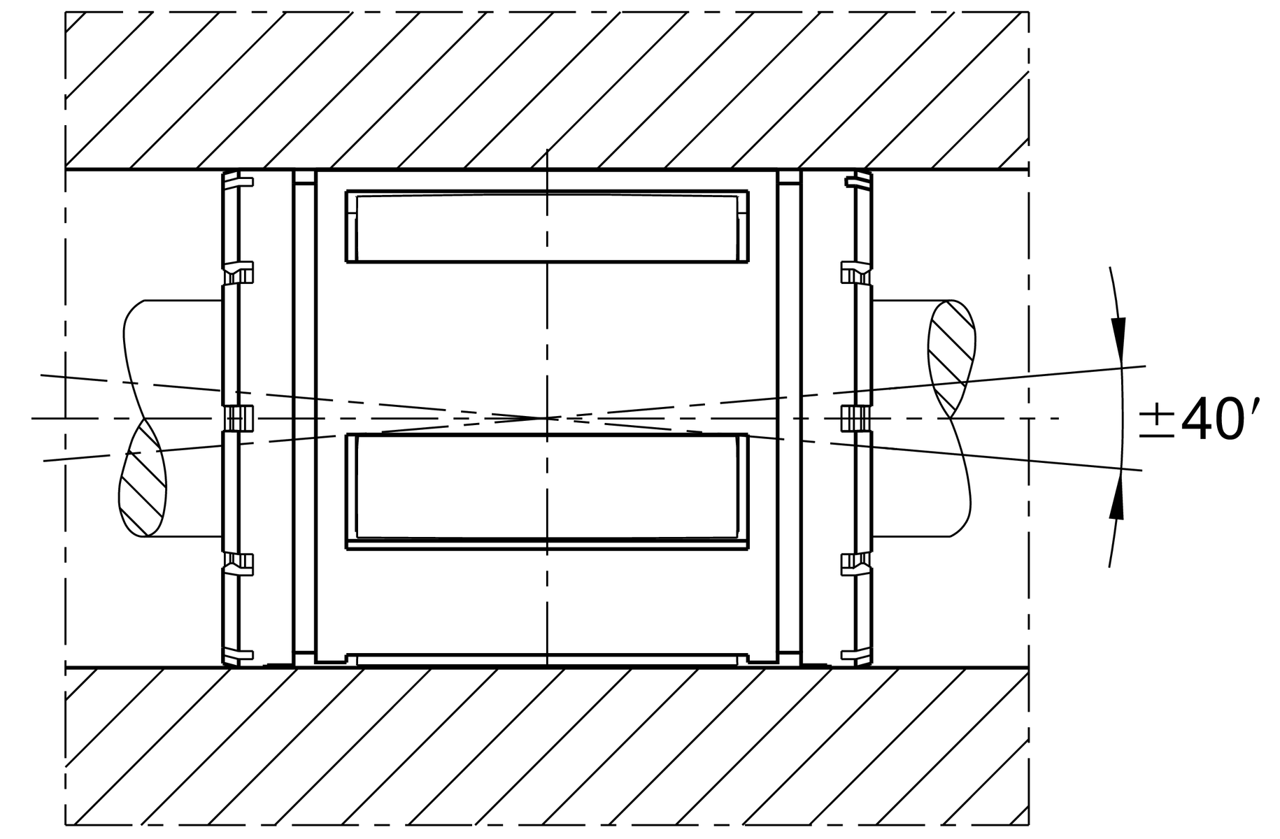
| A10 | 2 mm | Angle of sector opening |
| N1 | 3.5 mm | 2 |
| N4 | 3 mm | |
8 | 球列數 |
| Size code | 30 | |
| Seal | PP | 密封的 |