PRODUCTS
- 首頁
- 產品介紹
| FW | 50 mm | 內徑 of ball complement |
| D | 75 mm | 外徑 |
| L | 100 mm | 長度 |
| Cmax | 15,100 N | load capacity dyn. 1 |
| C0 max | 13,900 N | load capacity stat. 1 |
| ≈m | 0.47 kg | 重量 |
| B2 | 22.7 mm | Width of sector opening 2 |
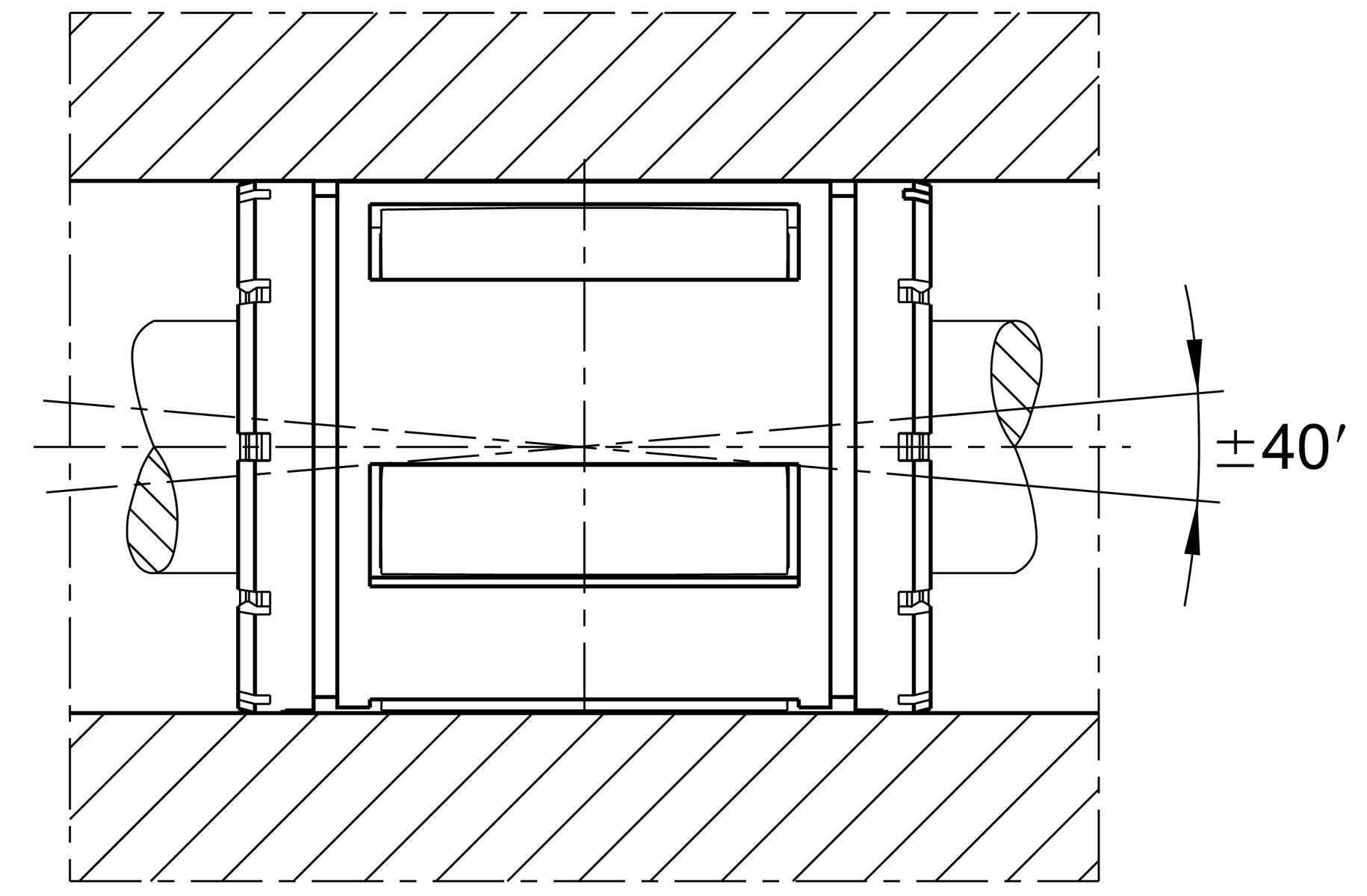
| A10 | 2.5 mm | Angle of sector opening |
| N1 | 4.5 mm | 3 |
| N4 | 5 mm | 3 |
| α | 54 ° | Angle of sector opening |
6 | 球列數 |
| Size code | 50 | |
| Seal | PP | 密封的 |