PRODUCTS
- 首頁
- 產品介紹
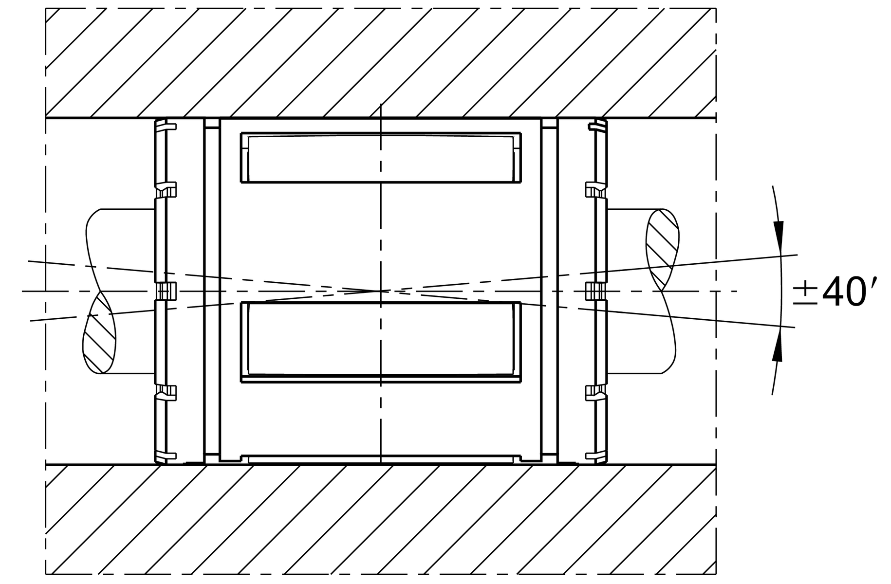
| FW | 16 mm | 內徑 of ball complement |
| D | 26 mm | 外徑 |
| L | 36 mm | 長度 |
| Cmin | 1,060 N | load capacity dyn. 1 |
| C0 min | 950 N | load capacity stat. 1 |
| Cmax | 1,430 N | load capacity dyn. 1 |
| C0 max | 1,550 N | load capacity stat. 1 |
| ≈m | 0.03 kg | 重量 |
| L2 | 24.6 mm | |
H13 | Tolerance | |
| BL2 | 1.3 mm | |
| DN | 25 mm | |
| N1 | 3 mm | 2 |
| N4 | 3 mm | |
8 | 球列數 |
| Size code | 16 |